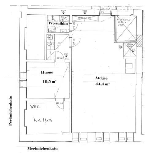
Betania-ateljeeasunto Perämiehenkatu ateljeen sijainti (002) Julkisivu Pohjapiirros Pienempi huone Keittokomero Kylpyhuone Share on FacebookTallenna