Siirry sisältöön
Valikko
Ajankohtaista
Haettavana
Vuokralaisille
Yhteystiedot: Kiinteistöhuolto
Yhteystiedot: Ateljeesäätiö
Tukisivusto
Työtilat
Lemuntie 6, Helsinki
Kisällitalo, Helsinki
Pälkäneentie 18, Helsinki
Kalasataman taiteilijatalo, Helsinki
Hämiksen vintti ja Graafikkotilat, Helsinki
Projektiateljee Artsu, Helsinki
Kontulan taiteilijatalo, Helsinki
Turun Taiteen talo
Herttoniemen taidevalimo, Helsinki
Kalervo Kallion Ateljeetalo, Helsinki
Ateljeeasunnot
Tapiolan ateljeetalo, Espoo
Oulunkylän ateljeetalot, Helsinki
Taiteilijatalo Ars Longa, Helsinki
Kuopion ateljeetalot, Kuopio
Kalervo Kallion Ateljeetalo, Helsinki
Grassinan Ateljeetalo
Tapiolan Stipendiateljeeasunto
Ateljeesäätiö
Esittely
Uutiskirjeen tilaus
Hallinto
Säännöt
Rekisteri- ja tietosuojaseloste
Yhteystiedot
EN
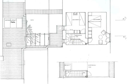
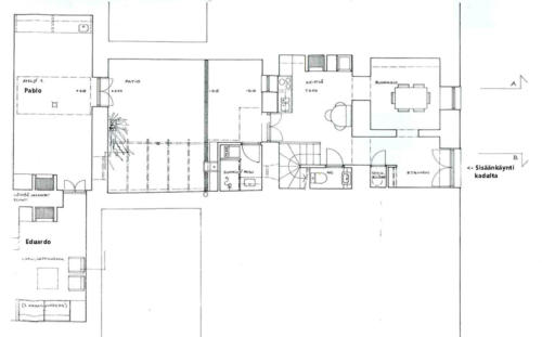
Marbella pohjapiir
Pohjakerros, sisäänkäyntitaso
1. kerros
leikkauspiirros
Share on Facebook
Tallenna